
Neuentwicklung FLIGHTCASE inklusive TKFDMOT – Kombination aus sicherem Transport und Funktionalität
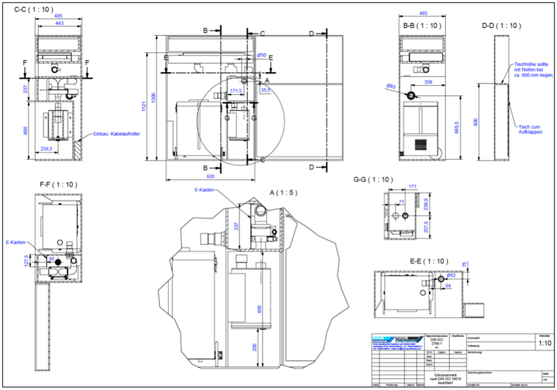
Speziell für die Ansprüche im Motorsport entwickeltes Absaug- und Filterkonzept. Alle absaug- und filtertechnisch relevanten Komponenten und Zubehörteile finden in einem Flightcase Platz, so dass ein sicherer Transport gewährleistet werden kann.
Das eigentliche Absaug- und Filtergerät TKFDMOT kann bequem über eine Rampe zum jeweiligen Einsatzort transportiert werden. Durch die Trolley-Bauweise ist die Handhabung sehr einfach.
Eine optionale Schublade bietet Platz für alle relevanten Absaugdüsen. Der Absaugarm, der mittels Tischklemmen am Absaug- und Filtergerät befestigt werden kann, findet in einem seitlichen Fach Platz. Die Saugschläuche und gegebenenfalls Ersatzfilter können im aufklappbaren Deckelmodul mitgeführt werden.
Bislang werden drei Konzepte angeboten, kundenspezifische Anforderungen können aber gerne mit berücksichtigt werden:

Konzept 1 umfasst ein Transportcase mit integrierter Schublade zum Verstauen diverser Saugdüsen und Zubehör.
Abmessungen: L x B x H – 650 x 700 x 1.230 mm
Konzept 2 stellt einen autarken (Schleif-) Arbeitsplatz dar mit zwei integrierten Schubladen und einem in der Tür ausklappbaren Arbeitstisch. Die obere Schublade ist fürs Absaugzubehör, ähnlich wie in Konzept 1, die untere Schublade beinhaltet eine Absaugplatte zur flächigen Absaugung nach unten.
Abmessungen: L x B x H – 970 x 680 x 1.460 mm
Konzept 3 ist ein reines Transportcase ohne Schublade.
Abmessungen: L x B x H – 650 x 700 x 1.075 mm

Entwickelt wurde die Umrüstungseinheit nach Anfrage eines Kunden, der bereits mit zahlreichen TKFVA Geräten ausgestattet ist. Für seine Sensorenfertigung benötigte er zusätzliche Sicherheitsmaßnahmen gegen die reaktiven Stäube von CrNi-Stählen und Titan. Da das Bestäubungsmodul INRVABE3.1 ausschließlich für die höheren Emissionsmengen der größeren Gerätetypen MKFVA und INRV ausgerichtet ist, wäre die Konsequenz ein teurer Komplettaustausch der Absaug- und Filtergeräte. Wirtschaftlich keine Option und auch nicht in unserem Sinne.
Kundenorientiert konzipierten unsere Ingenieure daraufhin die Umrüstungseinheit TKFVAÜG6, speziell ausgelegt für die entsprechenden Leistungsdaten der kompaktesten Geräteserie mit automatischer Filterabreinigung TKFVA. Mit dieser kann das Bestäubungsmodul INRVABE3.1 nun auch bei geringeren Emissionsmengen eingesetzt werden.
Durchdacht in jedem Detail:
- Dauerhafter Austrag über eine Schleuse in ein 20 ltr. Fass durch die optimale Position zum TKFVA, auch im Betrieb
- Die Bestäubung wurde für die geringeren Emissionsmengen genau parametriert
- Zum Ansteuern ist kein Quetschventil mehr notwendig
- PE-Folie im Fass für kontaminationsfreie Entsorgung
- Leerung des Fasses über Schnellspannverschluss offline
Mit der neuen Umrüsteinheit TKFVAÜG6 steht unseren Kunden nun eine komplette Sicherheits-Lösung speziell für geringere Emissionsmengen zur Verfügung, die problemlos in bestehende Systeme integriert werden kann.
Großes Interesse an TKFVA300 und Zyklon-Vorabscheider
Der Pantron/Fuchs Umwelttechnik Messestand war ein Magnet für die Fachbesucher. Besonders im Fokus standen unsere aktuellen Neuentwicklungen: das kompakte TKFVA300 Absaug- und Filtergerät sowie der Zyklon-Vorabscheider. Beide Systeme überzeugten durch ihre technische Ausführung, ihren hohen Qualitätsanspruch und praxisgerechte Einsatzmöglichkeiten in unterschiedlichsten industriellen Anwendungen.
Viele konkrete Kundenanfragen aus der Region
Zahlreiche Unternehmen aus North und South Carolina nutzten die Gelegenheit, sich mit konkreten Anfragen über maßgeschneiderte Absaug- und Filterlösungen für ihre spezifischen Applikationen vor Ort zu informieren. Schon während der Messe konnten weiterführende Besuchstermine bei den Firmen vereinbart werden – ein deutliches Zeichen für das hohe Interesse an der Leistungsfähigkeit unserer Absaug- und Filteranlagen.
Ausblick auf die Southtec 2027
Nach diesem erfolgreichen Messeauftritt bedanken sich Pantron und Fuchs Umwelttechnik bei allen Besuchern für das große Interesse. Das gemeinsame Team freut sich schon heute auf die Southtec 2027.
Mit dieser Partnerschaft stärken wir unsere Marktpräsenz vor Ort und stellen sicher,
dass unsere Kundinnen und Kunden in der Schweiz von kompetentem Fachwissen, direktem Kundenkontakt und erstklassigem Service profitieren.
Die Firma Fuchs Aadorf steht für Qualität, Zuverlässigkeit und technische Expertise – ideale Voraussetzungen, um die Vorteile und Leistungsfähigkeit unserer Geräte optimal zu vermitteln.